百姓厂房网   发布房源 求租求购
百姓厂房网   >      >   一手厂房出售开发商直售,首付4成起
(编号:226678) 一手厂房出售开发商直售,首付4成起
发布时间: 2020-12-16 09:24:40 房源状态: 出租中
  • 扫描该【房源】二维码
    查看该【房东】联系方式
  • 浏览
  • 浏览数:5098
    收藏数:0
所在区域: 衢州 / 柯城 建筑结构:
厂房面积: 3100 车辆出入:
出租价格: 666 万元 配电容量: KVA
办公面积: 可否分租:
空地面积: 是否独院:
所在楼层: 层      层高: 有无货梯:
具体位置: 柯城-柯城区 
详细描述
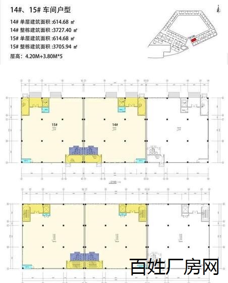
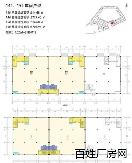
网驿时尚工厂项目位于浙江省衢州柯城区航埠镇,本项目是浙江省第三批特色小镇,也是浙江到衢州的山海重点工程,还是浙江省衢州柯城的中国柯城低碳小镇的首期启动工程,2018年10月10日与柯城区签订投资开发协议,并在当地衢州成立项目公司,同年11月23日完成土地摘牌,2019年4月开始动工,预计今年12月底左右完成主体封顶,在明年的10底前左右完成交付投产。 网驿时尚工厂这个项目规划用地300亩,建筑面积156亩,其中23栋6层的厂房和1栋12层的综合性用楼,园区内部配备有洗水厂,印花厂,绣花厂等公共设施厂房,没户都通蒸汽,而且这个洗水厂是政府特批的,可以安全放心的使用。 目前现在一期开盘14#,15#,39#,40#,41#这五幢,每层 每套620平米左右,整栋建筑面积3700平米,目前知名的服装企业品牌优美世界已经确定入驻我们园区了,我们的厂房属于一级用地产权是50年的,可以按每套,每层或者竖向单元的形式来办理不动产证,园区内配备5000平米的故障树广场,3000平米的小镇客厅,25000平米的生活,娱乐,健身等一体化的商业街。 小镇客厅的高层用于解决公司内部的核心员工的住宿,园区内部的道路,主干道米,次干道米,能有效的荷载达20吨,能够让中大型火车满载且安全的通行,园区内设1011个停车位,我们的厂房使用6层钢筋混凝土为主体框架为主,外墙涂料加彩色玻璃,首层 层高4.2米 ,楼上其他层高3.8米 ,首层承重标准500kg/平米,我们制作的承重量达到2吨/平米,电梯载重2吨,8.4米超大网柱,所以您选择我们园区, 第一就是选择了厂房质量以及货物运行的保障,第二员工招聘由政府协助支持,并给予相应政策的补贴,住房补贴每人每年不超过2400元,每家企业每年不超过20万元的一个住房补助的政策,对于生产需要高端的智能机器机械的厂家,如果您公司的仪器设备是购买的给予26%补贴,每家企业不超过100万,您是租赁的设备也给予10%的租赁设备的补贴费用,还有就是企业纳税超过150元/平米的标准,当地政府将对该企业实施三免三减的一个税收政策,前三年免去当地税收留存部分的100%,第4-6年免去50%的企业税收
【厂房图片】
【地图位置】
【本站点信息均来自转载网络或用户自行上传,其房源信息中陈述文字和内容未经本站证实,对其中全部或者部分内容、文字的真实性、完整性、及时性本站不作任何保证或承诺,信息仅作用户参考,并请自行核实相关内容,如有涉及信息侵犯,请联系我们立即删除。】
猜你查找
标准厂房10米层高大厂房本信息更新时长已经超出6个月,若房源已租售,请查看下一条。
新建厂房出租
出租航埠工业园区仓库
西区厂房,面积可分割800到2300平方均可
衢州常山江山航埠低碳小镇厂房招商
© 2015-2025 百姓厂房网   -   浙ICP备18033986号-1    浙公网安备 33011002015824号    服务热线:13093751618     服务时间:8:30 - 21:30